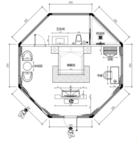
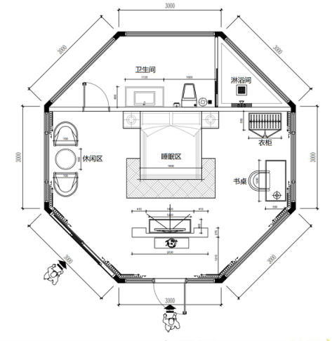
多边形帐篷
主材:优质碳钢钢管+圆管支撑(氟碳漆防锈处理) 外膜:PVDF优质膜材 内膜:PVC 墙体:双层中空玻璃 规格:3m8边套内面积:44㎡ 投影面积:63.07㎡ 抗风等级:10级以下
产品咨询